Технические характеристики пластиковых окон KBE, REHAU и ALUPLAST

Экологичность greenline без свинца! (Pb)
| KBE - 70 | |
![]() |
![]() |
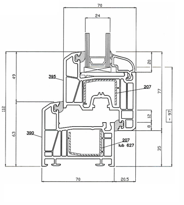
| Параметры профиля: KBE - 70 | |
| Камер | 5 |
| Монтажная ширина | 70 мм |
| Теплопотери | 1,3 W/m²K |
| Звукоизоляция | до 42 дБ |
| Диапазон температур | от - 60 до + 75 °С |
| Возможность установки стеклопакета толщиной | # 24 / # 36 |
| Возможность ламинирования профиля декоративными пленками | Да |
| Наличие контуров уплотнения резинок | 2 |
| Vēja slodzes izturība | B5 |
| Ūdens necaurlaidība, klase | 9A- E1500 |
| Gaisa Caurlaidība, klase | 4 |
| Долговечность (условных лет) | более 40 лет |
KBE 70 – современная профильная система, отвечающая высоким требованиям по теплоизоляции и стабильности. KBE 70 имеет монтажную ширину 70 мм, что позволяет сделать монтажный шов на 20% шире и лучше утеплить его. Широкий 5-камерный профиль позволяет установить более толстый стеклопакет, что значительно увеличивает теплоизоляцию помещения. Именно поэтому оконные системы из профиля KBE 70 получили название «Окна максимального комфорта»

Экологичность greenline без свинца! (Pb)
| KBE - 88 | |
![]() |
![]() |
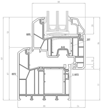
| Параметры профиля: KBE - 88 | |
| Камер | 6 |
| Монтажная ширина | 88 мм |
| Теплопотери | 0,8 - 1,0 W/m²K |
| Звукоизоляция | до 46 дБ |
| Диапазон температур | от - 60 до + 75 °С |
| Возможность установки стеклопакета толщиной | # 48 |
| Возможность ламинирования профиля декоративными пленками | Да |
| Наличие контуров уплотнения резинок | 3 |
| Vēja slodzes izturība | C3 |
| Ūdens necaurlaidība, klase | 9A-E1500 |
| Gaisa Caurlaidība, klase | 4 |
| Долговечность (условных лет) | более 40 лет |
КБЕ_88 мм – самая современная пластиковая оконная система на российском рынке и в европе. Окна из профиля КБЕ_88 мм отличаются элегантным внешним видом и высокой функциональностью, обеспечивают высочайший комфорт при максимальной экономичности, теплоизоляции и экологичности. Показатель сопротивления теплопередаче данной системы ПВХ-профилей уже сегодня соответствует требованиям 2017 года.


| REHAU Euro 70 | |
![]() |
![]() |
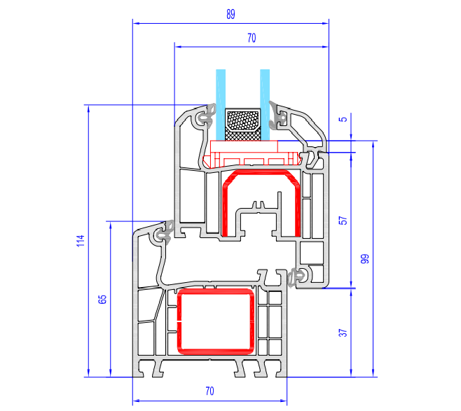
| Параметры профиля: REHAU - EURO 70 | |
| Камер | 5 |
| Монтажная ширина | 70 мм |
| Теплопотери | 1,3 W/m²K |
| Звукоизоляция | до 40 дБ |
| Диапазон температур | от - 60 до + 75 °С |
| Возможность установки стеклопакета толщиной | # 24 / # 36 |
| Возможность ламинирования профиля декоративными пленками | Да |
| Наличие контуров уплотнения резинок | 2 |
| Vēja slodzes noturība | C5/B5 |
| Udens necaurlaidiba | * |
| Gaisa caurlaidības | 4 |
| Akustikas ipasibas | * |
| Izturība pret stipru lietu | E900 |
Окна из профилей REHAU Euro 70 придадут особое благородство внешнему облику дома и украсят любой интерьер.
Оконная система REHAU Euro 70 относится к системам премиум-класса, способна удовлетворить самым высоким техническим и эстетическим требованиям элитного строительства. Оконные профили REHAU Euro 70, являясь суперпозицией эксклюзивного дизайна и инновационных технологий, требуют минимального ухода и идеальны в эксплуатации.

| REHAU GENEO | |
![]() |
![]() |
| Параметры профиля: REHAU - GENEO | |
| Камер | 6 |
| Монтажная ширина | 86 мм |
| Теплопотери | 0,85 W/m²K |
| Звукоизоляция | до 47 дБ |
| Диапазон температур | от - 60 до + 75 °С |
| Возможность установки стеклопакета толщиной | # 48 |
| Возможность ламинирования профиля декоративными пленками | Да |
| Наличие контуров уплотнения резинок | 3 |
| Veja slodzu izsturiba | * |
| Udens necaurlaidiba | 9A (EN 12208) |
| Gaisa Caurlaidiba | 4 (EN 12207) |
| Akustikas ipasibas | * |
Оконная система REHAU GENEO® - это уникальная система оконных профилей, армированных в массе. Она является настоящим прорывом в области производства оконных конструкций и выводит изделия оконной отрасли на новый, высочайший уровень потребительских характеристик. В основе изобретения – инновационный фиброволоконный материал RAU-FIPRO®, который отличается рекордной прочностью, сопротивляемостью к нагрузкам и позволяет отказаться от стального армирования.
Легкость без потери прочности. С помощью RAU-FIPRO® и продуманной геометрии профиля 86 мм стало возможным отказаться от использования стальных элементов. При этом облегченная на 40% конструкция GENEO® абсолютно не уступает существующим системам в прочностных характеристиках.



|
Aluplast - IDEAL 4000 |
|
![]() |
![]() |
![]() |
![]() |
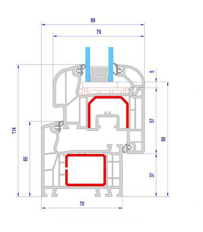
| Параметры профиля: Aluplast - IDEAL 4000 | |
| Камер | 5 |
| Монтажная ширина | 70 мм |
| Теплопотери | W/m²K |
| Звукоизоляция | до 45дБ |
| Диапазон температур | от -60 до +70°С |
| Возможность установки стеклопакета толщиной | # 24 / # 36 |
| Возможность ламинирования профиля декоративными пленками | Да |
| Наличие контуров уплотнения резинок | 2 |
| Vēja slodzes noturība | C4 |
| Udens necaurlaidiba | |
| Gaisa caurlaidības | 4 |
| Akustikas ipasibas | |
| Izturība pret stipru lietu | E1050 |
Окна, выполненные из профильной системы IDEAL 4000® - это разумная инвестиция в будущее, отвечающая всем требованиям сегодняшнего дня.
IDEAL 4000® - это надежная 5-тикамерная система с двумя контурами уплотнения и монтажной шириной 70 мм.
Превосходные технические характеристики и энергосберегающие качества системы IDEAL 4000® позволяют экономить расходы на отопление и кондиционирование.
Большая камера для армирующего профиля предоставляет возможность применения стального усилителя с высокими статическими показателями, что делает окна из профиля IDEAL 4000® надежными и безопасными.
Оригинальный и гармоничный дизайн IDEAL 4000® в сочетании с обилием системных решений идеально подойдет для ценителей практичности и элегантности.
Традиционная совместимость IDEAL 4000® с другими профильными системами aluplast, обеспечивает широкий выбор возможностей для принятия оптимальных решений.

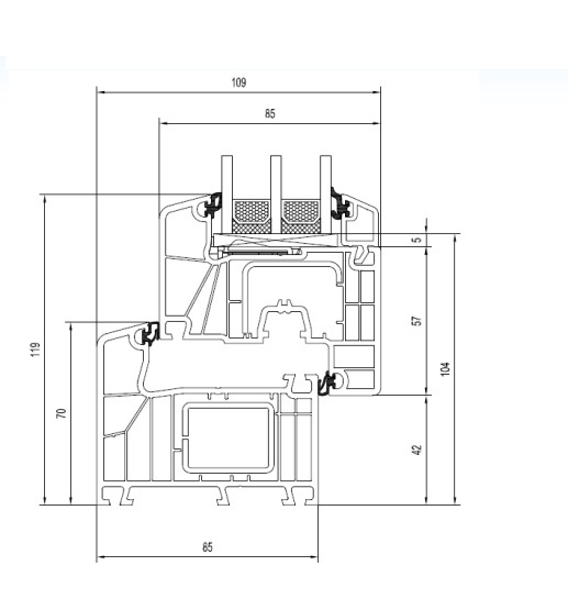
| Aluplast - IDEAL 7000 | |
![]() |
![]() |
| Параметры профиля: Aluplast - IDEAL 7000 | |
| Камер | 6 |
| Монтажная ширина | 85 мм |
| Теплопотери | 1,1 W/m²K |
| Звукоизоляция | до 45 дБ |
| Диапазон температур | от - 60 до + 70°С |
| Возможность установки стеклопакета толщиной | # 48 |
| Возможность ламинирования профиля декоративными пленками | Да |
| Наличие контуров уплотнения резинок | 2 |
| Veja slodzu izsturiba | * |
| Udens necaurlaidiba | * |
| Gaisa caurlaidības | 4 |
| Akustikas ipasibas | * |
| Izturība pret stipru lietu | E1500 |
IDEAL 7000® - это уникальная 6-камерная профильная система с монтажной шириной 85 мм. Три контура уплотнения обеспечивают повышенную тепло- и звукоизоляцию.
Дополнительная защита задерживает потоки тепла, пыли, влаги и способствует созданию приятного климата в помещении.
Благодаря монтажной ширине 85 мм можно устанавливать энергосберегающий стеклопакет 48 мм.
Традиционная совместимость IDEAL 7000® с другими профильными системами aluplast®, обеспечивает широкий выбор для оптимальных решений.
Изысканный дизайн, различные формы и конфигурации системы IDEAL 7000® формируют новый стандарт энергоэффективного интерьера и позволяют воплотить в жизнь самые смелые дизайнерские решения.
Система разработана для использования в условиях сурового климата. Отличная защита от холода.

Фурнитура со скрытыми петлями MACO MULTI POWER
| Таблица профилей от SIA "Logi24" | ||||||||
| Profils | Modelis |
Iebūves dziļums |
Profila siltums |
Stiklu skaits |
Stikla paketes biezums |
Stikla paketes siltums |
Garantija pilna |
Garantija profils |
| KBE | 70 | 70 mm | 1,3 W/m²K | 2 | # 24 | k=1,0 | 5 gadu. | 30 gadu. |
| KBE | 70 | 70 mm | 1,3 W/m²K | 3 | # 36 | k=0,7 | 5 gadu. | 30 gadu. |
| KBE | 88 | 88 mm | 0,8 W/m²K | 3 | # 48 | k=0,5 | 5 gadu. | 30 gadu. |
| REHAU | EURO 70 | 70 mm | 1,3 W/m²K | 2 | # 24 | k=1,1 | 2 gadu | 30 gadu. |
| REHAU | EURO 70 | 70 mm | 1,3 W/m²K | 3 | # 36 | k=0,7 | 2 gadu | 30 gadu. |
| Aluplast | 4000 | 70 mm | 1,3 W/m²K | 2 | # 24 | k=1,1 | 2 gadu. | 5 gadu. |
| Aluplast | 4000 | 70 mm | 1,3 W/m²K | 3 | # 36 | k=0,7 | 2 gadu. | 5 gadu. |
| Aluplast | 7000 | 85 mm | 1,1 W/m²K | 3 | # 48 | k=0,5 | 2 gadu. | 5 gadu. |
| Таблица стеклопакетов от SIA "Logi24" | ||||||
| № | Маркировка | Общая толщина | Теплопатерия | Кол. селиктивных стёкол | Расстояния между стёкол | Вес Кг. |
| Стандартные | ||||||
| 1 | 4 / 16 / 4 Low-E | # 24 мм | k=1,1 | 1 | 16 мм | 21 |
| 2 | 4 Low-E/ 12 / 4 /12 / 4 Low-E | # 36 мм | k=0,7 | 2 | 12 + 12 мм | 31 |
| 3 | 4 Low-E/ 18 / 4 /18 / 4 Low-E | # 48 мм | k=0,5 | 2 | 18 + 18 мм | 31 |
или бесплатно вызовите замерщика с консультацией по установке пластиковых окон (ПВХ, стеклопакетов)













